20 South Main Street
Newport, NH 03773
Square Ft.
18,664
$14
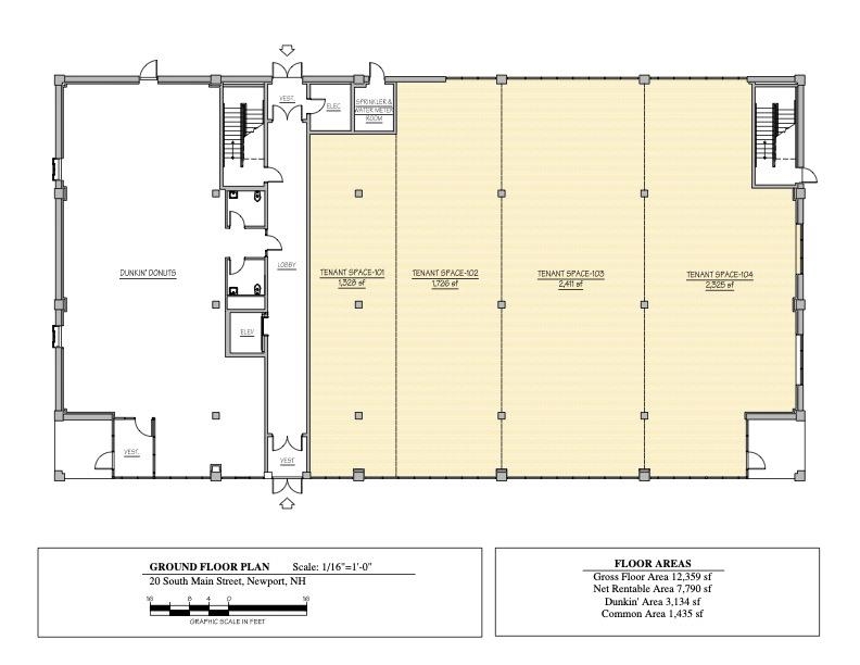
Welcome to 20 S Main Street, the former headquarters of Brampton Mill Co. This mixed-use building is located in the heart of Newport, near the intersection of Route 10, 11, and 103. Anchored by a Dunkin Donuts and a Verizon Wireless store, this location see an average daily traffic count… Read More of ±13,400 VPD. This prime retail space offers an unbeatable location at an attractive rate. Total of 5,000 SF available, units are divisible to as small as 1,350 SF. With ample on-site parking of over 75 spaces, flexible I-1 zoning, and landlord to deliver a vanilla box ready unit, this is a versatile location for many prospective retailers looking to be a part of Newport's growing downtown. Read Less
Courtesy of Matthew Lefebvre, Downtown Realty 603-554-2309
Listing Snapshot
Days Online
896
Last Updated
Square Ft.
18,664
Lot Size
2.16 Acres
Year Built
1930
MLS Number
4977317
Additional Details
Appliances & Equipment
18664 elevators
Building
Built in 1930, 18,664 total building sqft, 5,465 total sqft available
Lot
94,090 sqft, 2.16 acres
Property
Road Frontage Length: 297, Road Frontage: Yes, Seasonal: No
Unit One
Unit 1 Type: Retail, Unit 1 Level: Negotiable
Find The Perfect Home
'VIP' Listing Search
Whenever a listing hits the market that matches your criteria you will be immediately notified.
Nikolas Amicone
Owner | Broker | Attorney
Thank you for reaching out! I will be able to read this shortly and get ahold of you so we can chat.
~NikolasPlease Select Date
Please Select Type
Copyright © PrimeMLS, Inc. All Rights Reserved.
This information is deemed reliable, but not guaranteed. The data relating to real estate displayed on this Site comes in part from the IDX Program of PrimeMLS. The information being provided is for consumers' personal, non-commercial use and may not be used for any purpose other than to identify prospective properties consumers may be interested in purchasing. Data last updated .
Data last updated .

Confirm your time
Fill in your details and we will contact you to confirm a time.
Find My Dream Home
Put an experts eye on your home search! You’ll receive personalized matches of results delivered direct to you.