TBD Olivia Lane
St. Albans Town, VT 05478
Beds
3
Baths
3
Square Ft.
1,600
$549,000
Welcome to Olivia Lane in the beautifully sought after town of Saint Albans! There has never been a better time to build your very own custom dream home. On this beautiful +/- 1.97 acre lot, the possibilities are endless. Follow the meticulously crafted plans shown, all while choosing custom colors… Read More and finishes to make the house your own, or work with the builder to create your own dream plans! Listing agent related to seller. Read Less
Courtesy of Olivia Cooper, M Realty 802-363-9501
Listing Snapshot
Days Online
288
Last Updated
Property Type
Single Family
Beds
3
Full Baths
2
Partial Baths
1
Square Ft.
1,600
Lot Size
1.97 Acres
Year Built
2025
MLS Number
5047746
Additional Details
Property Access
Road Frontage: TBD
Building
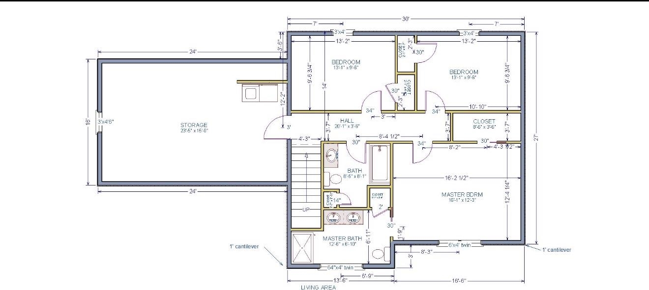
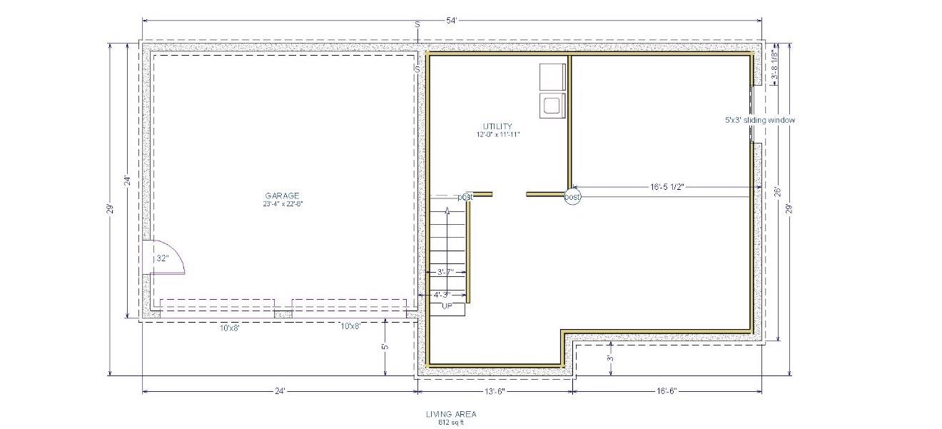
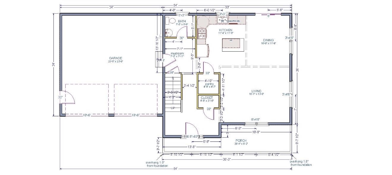
Basement: Yes, 9 rooms, Built in 2025, 1,600 total finished sqft, Total stories: 2, Construction status: New Construction, 320 unfinished sqft above grade, 800 unfinished sqft below grade, 1,600 finished sqft above grade
Roof
Metal
Basement
Basement access: Interior, Unfinished
Heating
Baseboard
Cooling
None
Utilities
Electric: 200+ Amp Service
Garage
Garage: Yes, Garage capacity: 2
Lot
1.97 acres, 2,720 approx. sqft, 85,813 sqft
Parking
Driveway: Crushed Stone
Property
Flood Zone: Unknown, Zoning: Residential, Seasonal: No
Sewer
Septic
Find The Perfect Home
'VIP' Listing Search
Whenever a listing hits the market that matches your criteria you will be immediately notified.
Nikolas Amicone
Owner | Broker | Attorney
Thank you for reaching out! I will be able to read this shortly and get ahold of you so we can chat.
~NikolasPlease Select Date
Please Select Type
Similar Listings
Copyright © PrimeMLS, Inc. All Rights Reserved.
This information is deemed reliable, but not guaranteed. The data relating to real estate displayed on this Site comes in part from the IDX Program of PrimeMLS. The information being provided is for consumers' personal, non-commercial use and may not be used for any purpose other than to identify prospective properties consumers may be interested in purchasing. Data last updated .
Data last updated .

Confirm your time
Fill in your details and we will contact you to confirm a time.
Find My Dream Home
Put an experts eye on your home search! You’ll receive personalized matches of results delivered direct to you.