6 Forest Drive
Seabrook, NH 03874
Beds
4
Baths
2
Square Ft.
2,438
$579,900
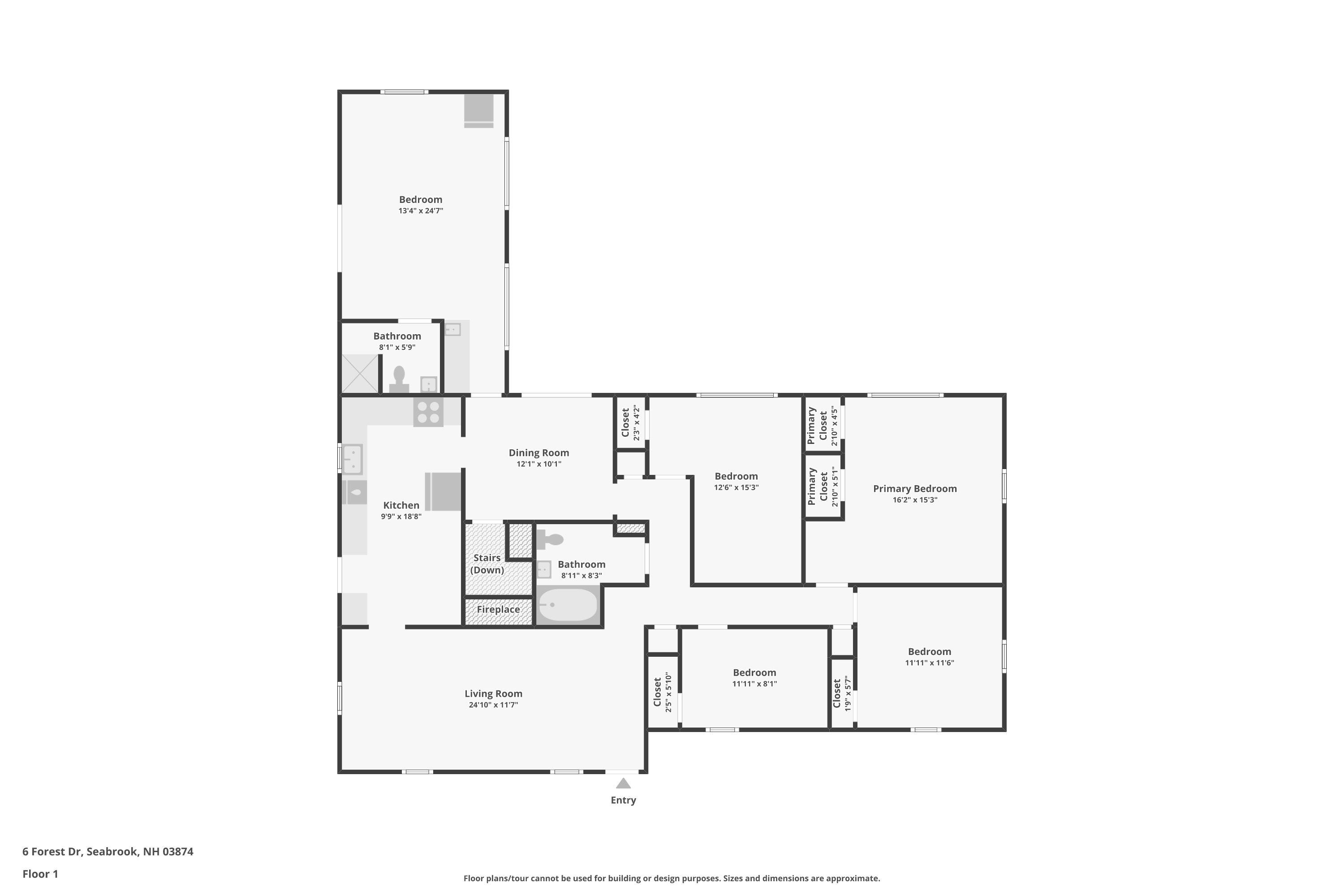
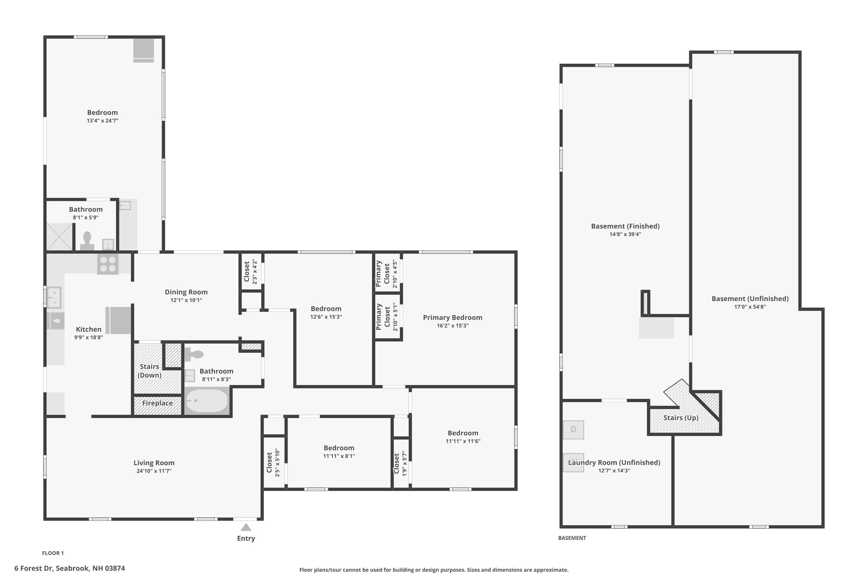
Welcome home to 6 Forest Drive in Seabrook a charming ranch-style residence thoughtfully designed for comfort, flexibility, and effortless living. This beautifully maintained home offers a versatile floor plan with four bedrooms and two baths, along with the added peace of mind of a newer roof. Expansive living spaces include… Read More a gracious great room/family room, as well as formal living and dining room, creating an ideal setting for both elegant entertaining and everyday living. The updated kitchen serves as the heart of the home, featuring quartz countertops, stylish cabinetry, quality appliances, and tile flooring perfectly blending sophistication and function. A sun-filled great room/family room with a ¾ bath and separate access, including ramp entry, offers excellent potential for multi-generational living, extended guests, or a private retreat. Overlooking the lush, well-manicured backyard, the home enjoys the peaceful sights and sounds of Cain’s Brook, providing a serene natural backdrop and views of local wildlife. A spacious wraparound deck extends the living space outdoors, Perfect for outdoor dining, entertaining, or quiet moments surrounded by nature. Book your Showing today! Read Less
Courtesy of Melissa Johnson, Jill & Co. Realty Group - Real Broker NH, LLC Phone: 603-860-7071
Listing Snapshot
Days Online
64
Last Updated
Property Type
Single Family
Beds
4
Full Baths
2
Square Ft.
2,438
Lot Size
0.32 Acres
Year Built
1969
MLS Number
5075268
Additional Details
Property Access
Road Frontage: Yes
Building
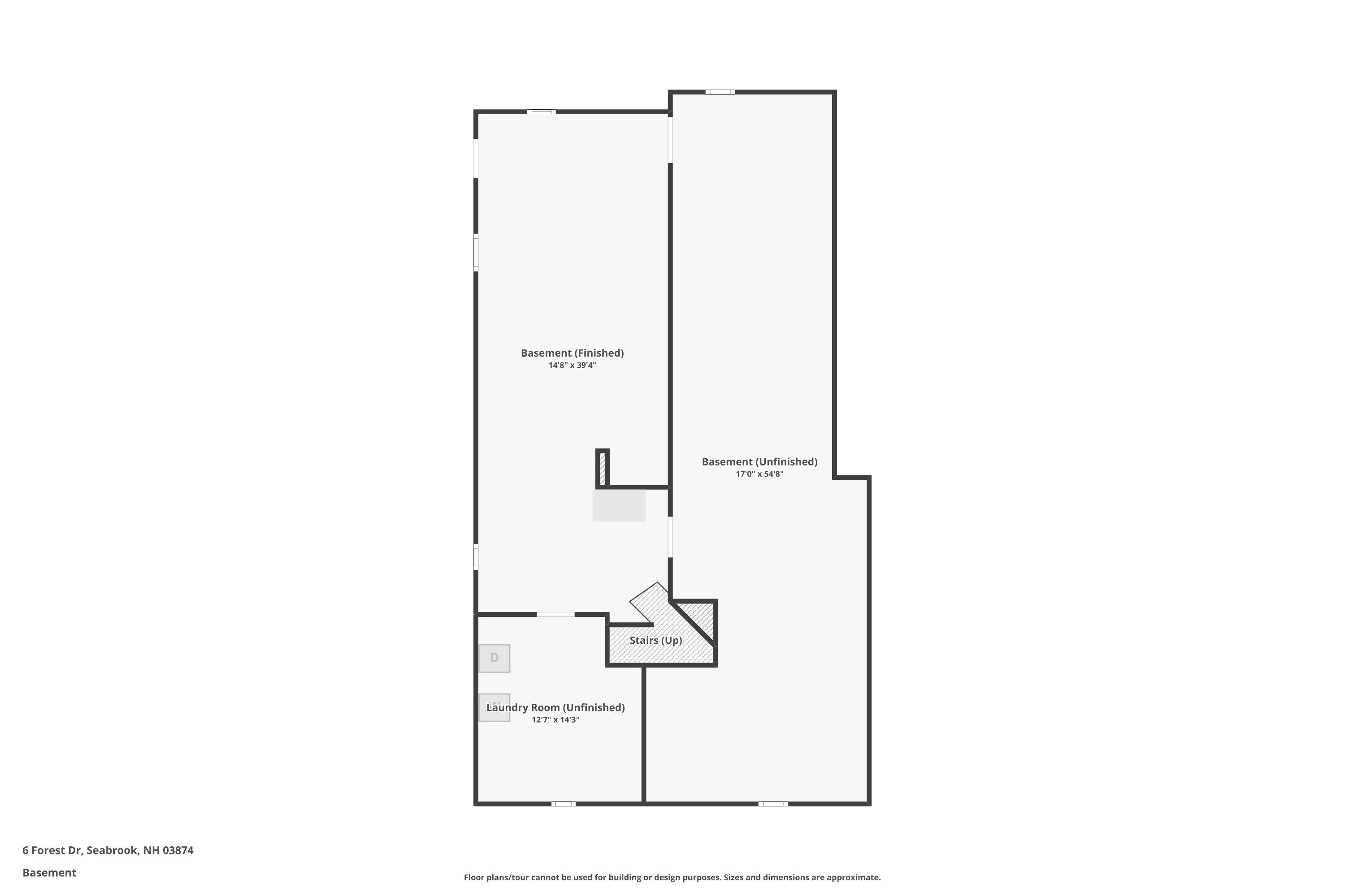
Basement: Yes, 8 rooms, Built in 1969, 2,438 total finished sqft, Total stories: 1, Construction status: Existing, 1,272 unfinished sqft below grade, 1,855 finished sqft above grade, 583 finished sqft below grade
Roof
Asphalt Shingle
Basement
Basement access: Interior, Concrete Floor, Partially Finished, Interior Stairs, Exterior Access
Floors
Ceramic Tile, Hardwood
Appliances & Equipment
Dishwasher, Dryer, Electric Range, Refrigerator, Washer
Heating
Oil, Electric, Hot Air, Wood Stove
Cooling
None
Water Features
Water body type: Pond
Utilities
Electric: Circuit Breaker(s)
Garage
Garage: No
Lot
0.32 acres, 3,710 approx. sqft, 13,939 sqft
Parking
Driveway: Paved
Property
Flood Zone: Unknown, Zoning: Residential, Seasonal: No
Sewer
Public
Taxes
Gross amount: $6,012
Find The Perfect Home
'VIP' Listing Search
Whenever a listing hits the market that matches your criteria you will be immediately notified.
Nikolas Amicone
Owner | Broker | Attorney
Thank you for reaching out! I will be able to read this shortly and get ahold of you so we can chat.
~NikolasPlease Select Date
Please Select Type
Copyright © PrimeMLS, Inc. All Rights Reserved.
This information is deemed reliable, but not guaranteed. The data relating to real estate displayed on this Site comes in part from the IDX Program of PrimeMLS. The information being provided is for consumers' personal, non-commercial use and may not be used for any purpose other than to identify prospective properties consumers may be interested in purchasing. Data last updated .
Data last updated .

Confirm your time
Fill in your details and we will contact you to confirm a time.
Find My Dream Home
Put an experts eye on your home search! You’ll receive personalized matches of results delivered direct to you.