11 Woodbury Street
Keene, NH 03431
Beds
3
Baths
1
Square Ft.
1,178
$375,000
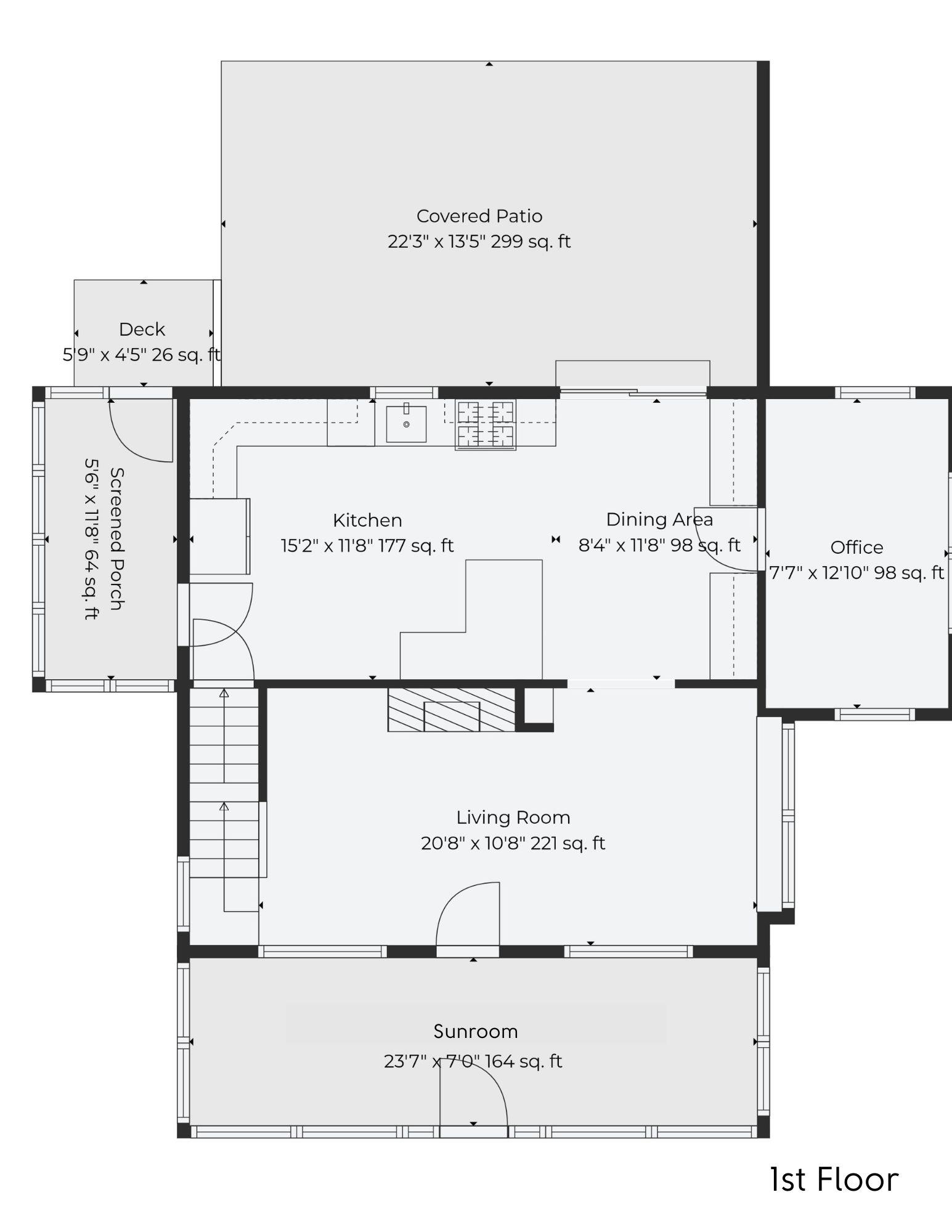
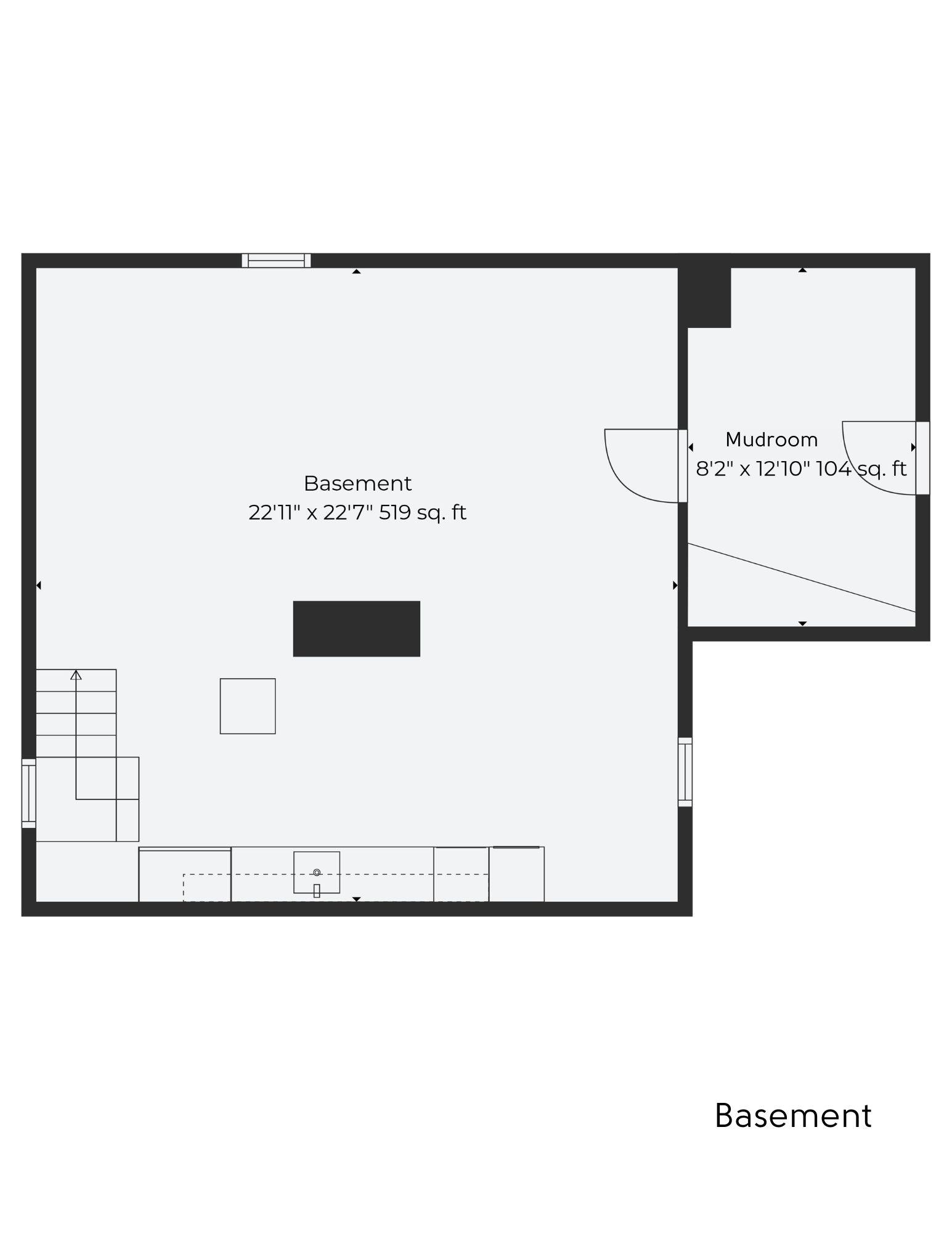
***OFFER DEADLINE - SUNDAY AT 5PM***Timeless meets today in this true Craftsman home offering 3 bedrooms, 1 bath, and a rare level of character and craftsmanship that stands out from the rest. From the classic front porch to the rich woodwork & thoughtfully designed built-ins, every detail reflects quality and… Read More purpose. The layout is both functional & comfortable, blending original charm with everyday livability. The main level offers an open-concept kitchen & dining area with abundant cabinetry & storage, flowing effortlessly into a sunlit home office and inviting living room with a wood stove and custom built-ins, all complemented by beautiful wood floors throughout and access to the spacious front porch. Upstairs offers two bedrooms with a well-planned layout, complemented by a full bath. The basement adds valuable flex space with a dedicated workshop area, storage, and a pellet stove, plus a convenient mudroom entry. Just beyond the doors, your own private backyard oasis awaits. This outdoor space invites you to unwind—from the welcoming patio to the beautifully landscaped level yard. A custom-built fire pit and detached guest cottage with a mini-split complete the setting. A home where every detail has been thoughtfully considered, with a warm inviting atmosphere—creating a space that feels less like a house and more like a place you truly belong. Central air conditioning adds year-round comfort, while multiple heating options enhance the overall the energy efficient home. All just moments from downtown Keene, with easy access to major commuting routes, hospital, schools, shopping, and everyday amenities. Immaculately maintained and move-in ready. Can you imagine what it would feel like to call this your own? OPEN HOUSE SATURDAY, APRIL 11TH 12PM to 2PM. Hope to see you Saturday! Read Less
Courtesy of Isabella Luhrs, BHG Masiello Keene 603-352-5433
Listing Snapshot
Days Online
23
Last Updated
Property Type
Single Family
Beds
3
Full Baths
1
Square Ft.
1,178
Lot Size
0.21 Acres
Year Built
1930
MLS Number
5082558
Additional Details
Property Access
Road Frontage: Yes
Building
Basement: Yes, 7 rooms, Built in 1930, 1,178 total finished sqft, Total stories: 1.75, Construction status: Existing, 559 unfinished sqft above grade, 720 unfinished sqft below grade, 1,178 finished sqft above grade
Roof
Architectural Shingle
Basement
Basement access: Walkout, Climate Controlled, Concrete, Full, Insulated, Interior Stairs, Storage Space, Unfinished, Walkout, Interior Access, Exterior Access
Floors
Hardwood, Tile
Appliances & Equipment
Dishwasher, Gas Range, Refrigerator, On Demand Water Heater
Heating
Natural Gas, Pellet Stove, Forced Air, Hot Air, Multi Zone, 2 Stoves, Wood Stove, Mini Split
Cooling
Central AC
Utilities
Electric Company: Eversource, Electric: Circuit Breaker(s)
Garage
Garage: No
Lot
0.21 acres, 2,457 approx. sqft, 9,148 sqft
Parking
Driveway: Paved
Property
Flood Zone: No, Zoning: Residential, Owned Land: Yes, Seasonal: No
Sewer
Public
Taxes
Gross amount: $6,325
Find The Perfect Home
'VIP' Listing Search
Whenever a listing hits the market that matches your criteria you will be immediately notified.
Nikolas Amicone
Owner | Broker | Attorney
Thank you for reaching out! I will be able to read this shortly and get ahold of you so we can chat.
~NikolasPlease Select Date
Please Select Type
Similar Listings
Copyright © PrimeMLS, Inc. All Rights Reserved.
This information is deemed reliable, but not guaranteed. The data relating to real estate displayed on this Site comes in part from the IDX Program of PrimeMLS. The information being provided is for consumers' personal, non-commercial use and may not be used for any purpose other than to identify prospective properties consumers may be interested in purchasing. Data last updated .
Data last updated .

Confirm your time
Fill in your details and we will contact you to confirm a time.
Find My Dream Home
Put an experts eye on your home search! You’ll receive personalized matches of results delivered direct to you.